• Prix réduit

Dispensador y depósito desechos de toallas sanitarias y tampones (25¢ la operación) empotrado marca ASI

10-04684-TM-25
1 331,90 € PVP
Sauvegarder 35%
865,74 €
HT Expédition directe d'usine à votre adresse - Le délai de livraison habituel est d'une semaine
1 047,55 €
Impuestos incluidos

Dispensador y depósito de desechos de toallas sanitarias y tampones (25¢ la operación) empotrado marca ASI

Dispensador empotrado con depósito para desechos de toallas sanitarias y tampones. Operación económica a 25¢ por uso. Diseño eficiente para baño público.

Quantité
10-04684-TM-25
La livraison se fera directement depuis l'entrepôt du fabricant

Dispensador y depósito de desechos de toallas sanitarias y tampones (25¢ la operación) empotrado marca ASI

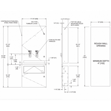
El dispensador y depósito de desechos de toallas sanitarias y tampones de la marca ASI, con operación de 25¢, es una solución funcional y eficiente para espacios públicos. Este modelo puede dispensar 15 toallas sanitarias y 23 tampones de tamaños específicos, mientras que su depósito integrado tiene una capacidad de 7,2 litros para residuos. Las puertas se cierran de manera segura con dos (2) cerraduras de borjas, y el monedero interno utiliza una llave distinta a las de las puertas, proporcionando mayor seguridad. Los mecanismos dispensadores están montados internamente, lo que permite cambiar fácilmente la denominación de las monedas según sea necesario. Además, se suministran pesos para cada pista de alimentación, asegurando un funcionamiento óptimo. Las dimensiones generales del producto son 17-1/4″ x 43-3/8″ x 4-1/2″ (438 x 1102 x 114 mm), mientras que la abertura de la pared requerida es de 16″ x 42″ x 4″ mínimo (406 x 1067 x 102 mm). Este dispensador empotrado es ideal para garantizar comodidad y limpieza en áreas con alta afluencia.

10-04684-TM-25

envío
gratuito

En más del 90% de nuestros productos

soporte especializado

De lunes a viernes en horario comercial

devoluciones sencillas

48 horas para comprobar su pedido

Precio mínimo garantizado

Precios sin competencia asegurado

Pago
seguro

pague online sin preocuparse

New Account Register

Already have an account?
Log in instead Ou Reset password